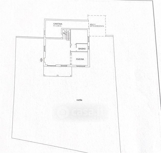
Villa in vendita carmine , Colli Verdi
Salva
Casa.it
1/31
  • Street View
  • Map