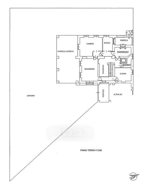
Villa in vendita Via Briantea 1, Como
Salva
Casa.it
1/23
  • Street View
  • Map