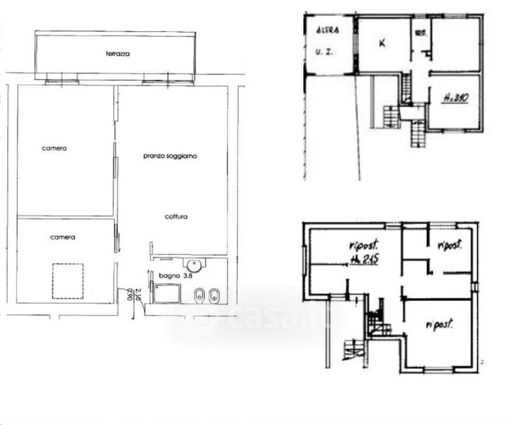
Villa in vendita Via Madre Teresa di Calcutta 7, Concesio
Salva
Casa.it
1/17
  • Street View
  • Map