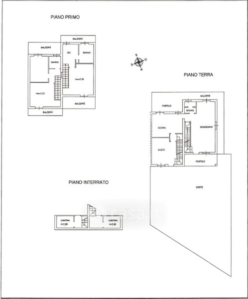
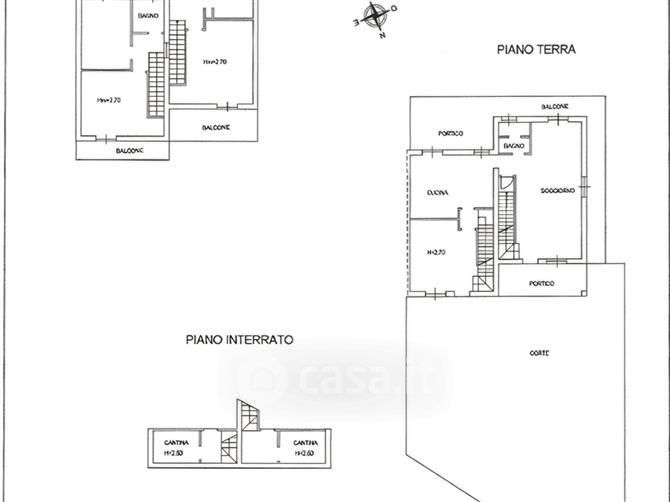
Villa in vendita Via Giuseppe Remida , Concesio
Salva
Casa.it
1/120
  • Street View
  • Map