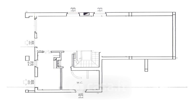
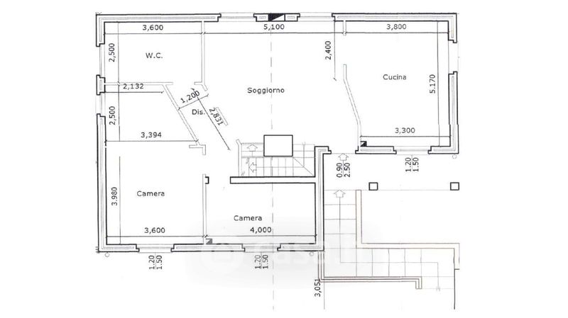
Villa in vendita Via Leone Tolstoi , Corbetta
Salva
Casa.it
1/24
  • Street View
  • Map