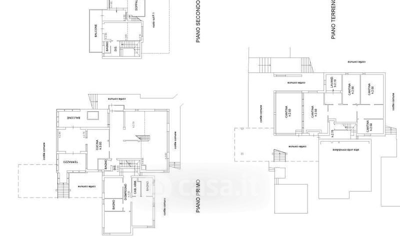
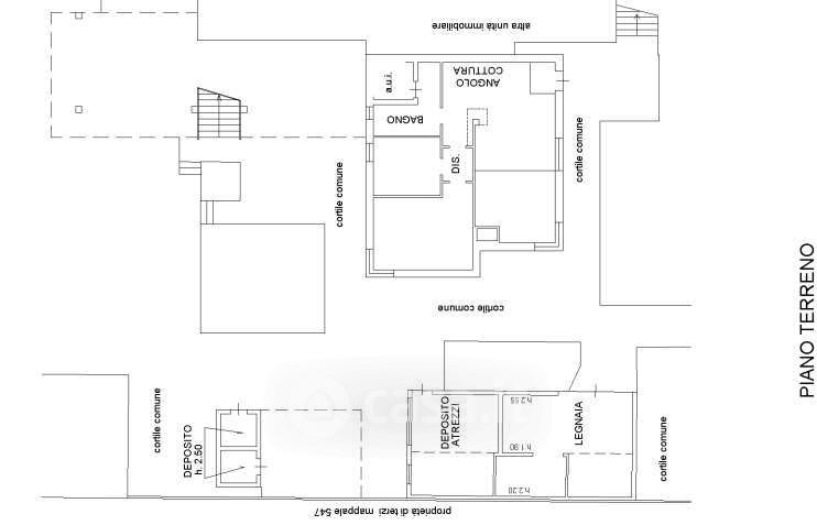
Villa in vendita Via N. Sauro , Corbetta
Salva
Casa.it
1/27
  • Street View
  • Map