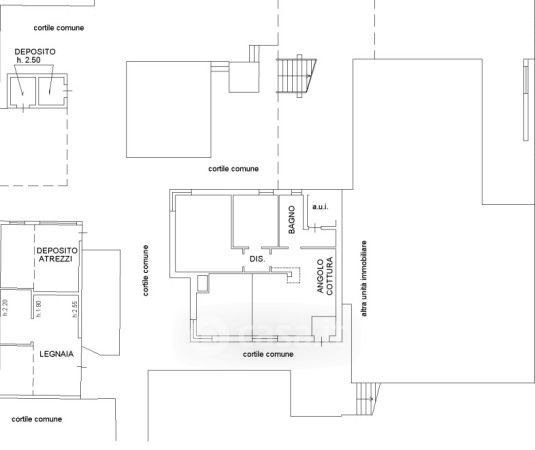
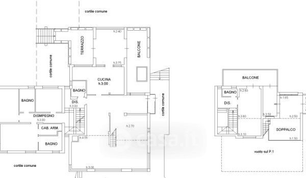
Villa in vendita Via N. Sauro 26, Corbetta
Salva
Casa.it
1/23
  • Street View
  • Map