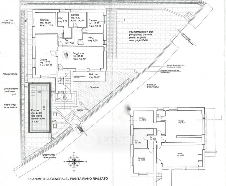
Villa in vendita Via Caporali , Desenzano del Garda
Salva
Casa.it
1/37
  • Street View
  • Map