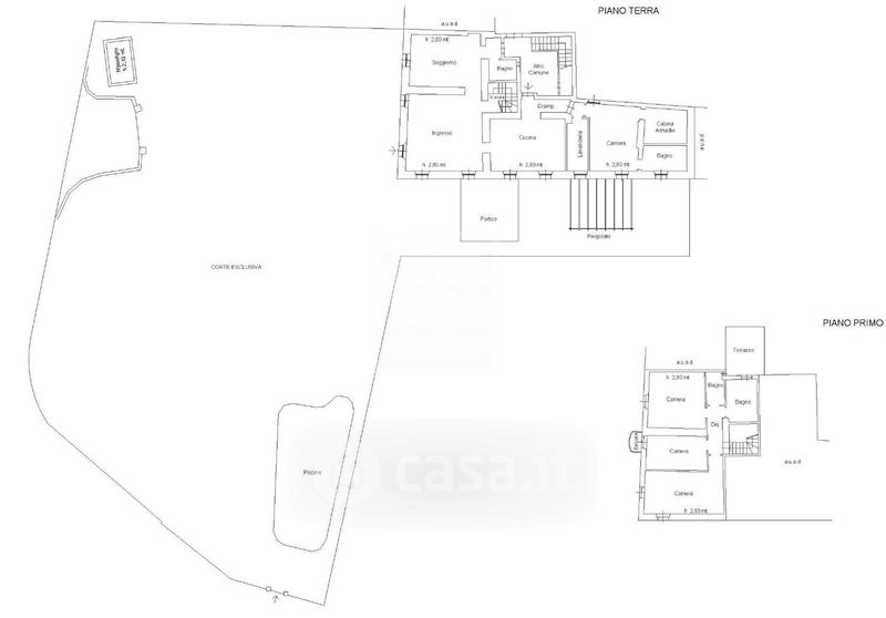
Villa in vendita Via Tommaso dal Molin 45, Desenzano del Garda
Salva
Casa.it
1/23
  • Street View
  • Map