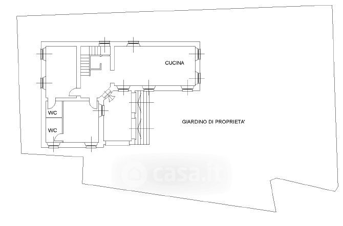
Villa in vendita Via Guglielmo Marconi 81, Erba
Salva
Casa.it
1/32
  • Street View
  • Map