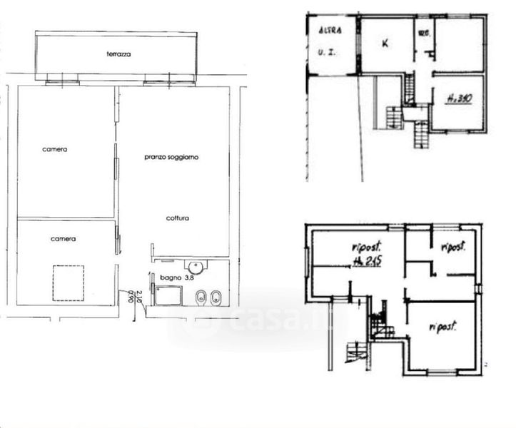
Villa in vendita Via Saletti 14, Esine
Salva
Casa.it
1/30
  • Street View
  • Map