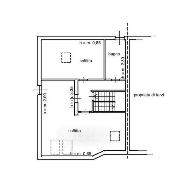
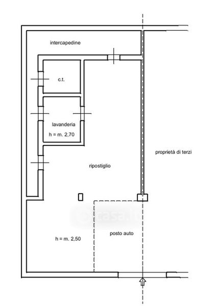
Villa in vendita Via Castello 4, Griante
Salva
Casa.it
1/31
  • Street View
  • Map