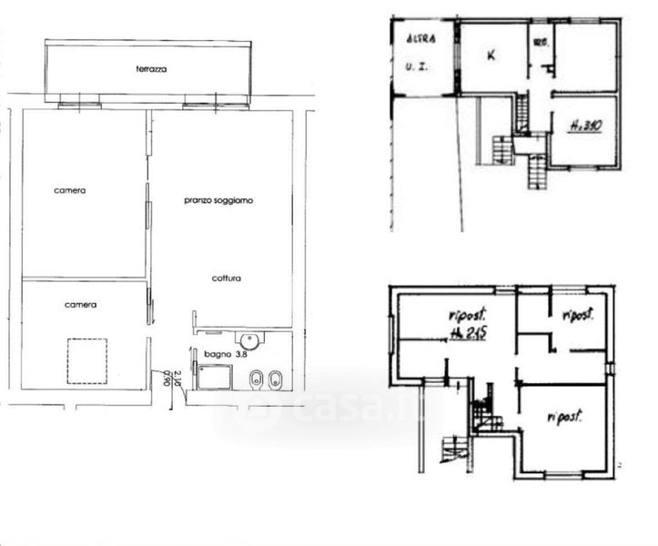
Villa in vendita Via Dosso 7, Grumello Cremonese ed Uniti
Salva
Casa.it
1/17
  • Street View
  • Map