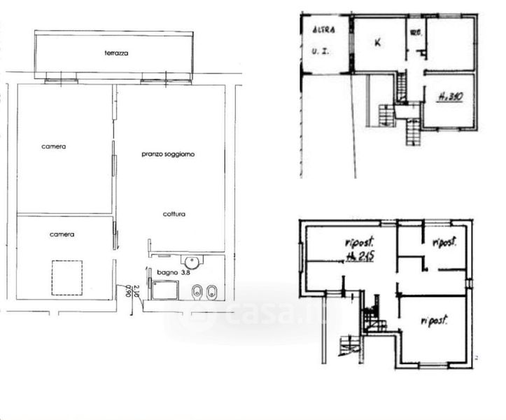
Villa in vendita Via O. Rosai 1, Leno
Salva
Casa.it
1/17
  • Street View
  • Map