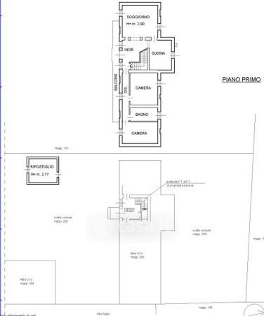
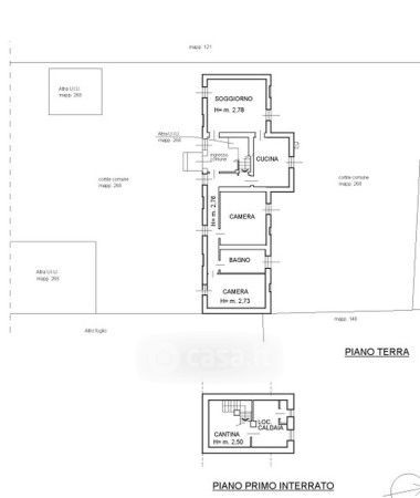
Villa in vendita Via Guglielmo Marconi 68, Magnago
Salva
Casa.it
1/14
  • Street View
  • Map