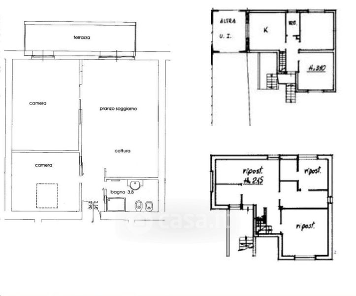
Villa in vendita Via Martiri della Liberta 19, Malagnino
Salva
Casa.it
1/13
  • Street View
  • Map