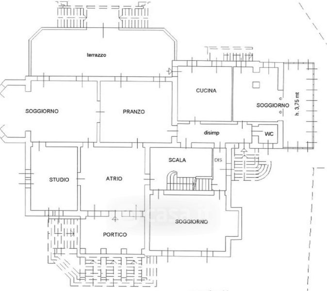
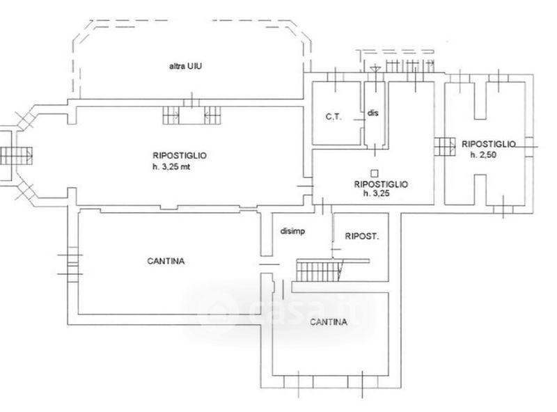
Villa in vendita Via Emanuele D'Adda 14, Mariano Comense
Salva
Casa.it
1/49
  • Street View
  • Map