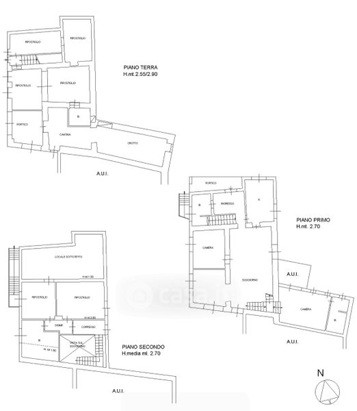
Villa in vendita Via 20 Settembre , Maslianico
Salva
Casa.it
1/39
  • Street View
  • Map