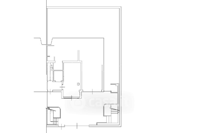
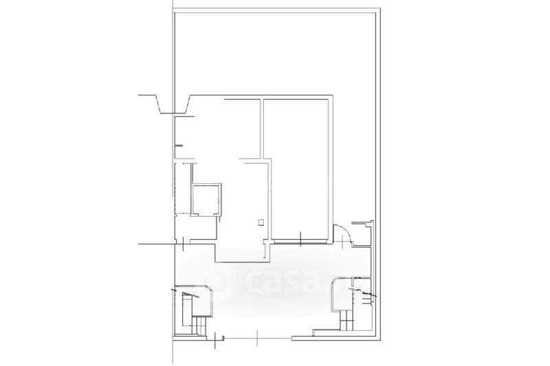
Villa in vendita Via dei Sagredo , Milano
Salva
Casa.it
1/85
  • Street View
  • Map