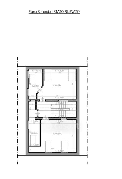
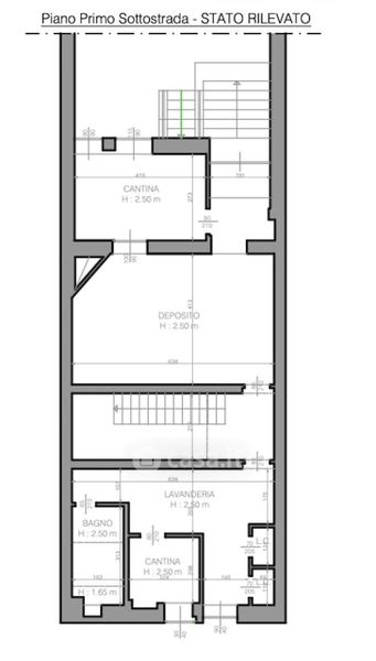
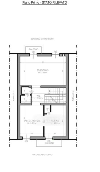
Villa in vendita Via Mosè Bianchi 55, Milano
Salva
Casa.it
1/28
  • Street View
  • Map