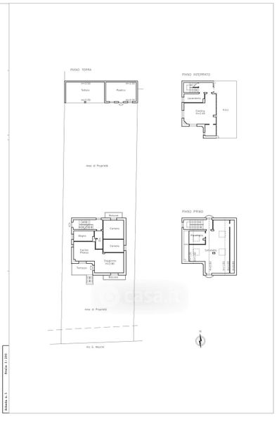
Villa in vendita Via G. Mazzini 7, Misinto
Salva
Casa.it
1/56
  • Street View
  • Map