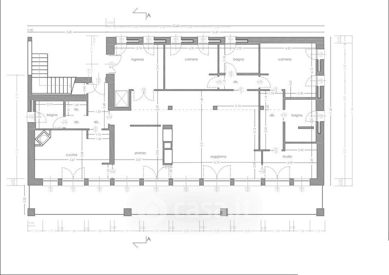
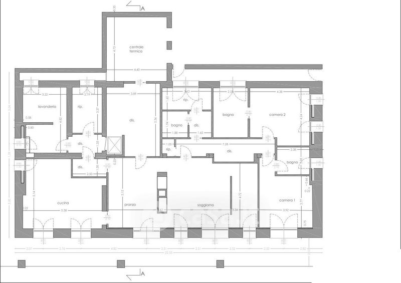
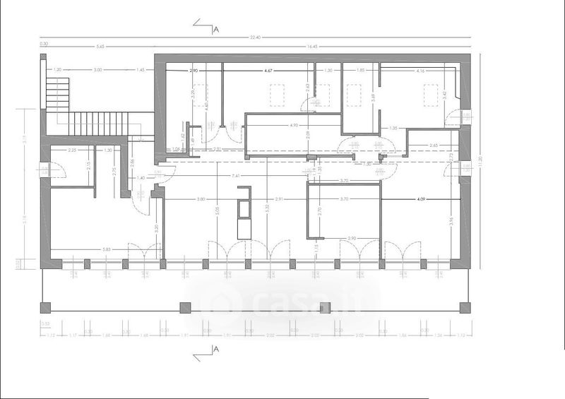
Villa in vendita Via Piccardino , Missaglia
Salva
Casa.it
1/17
  • Street View
  • Map