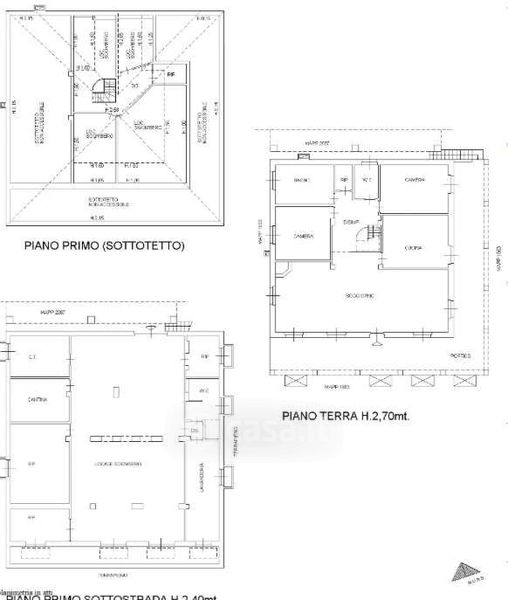
Villa in vendita Via dei Campi , Missaglia
Salva
Casa.it
1/26
  • Street View
  • Map