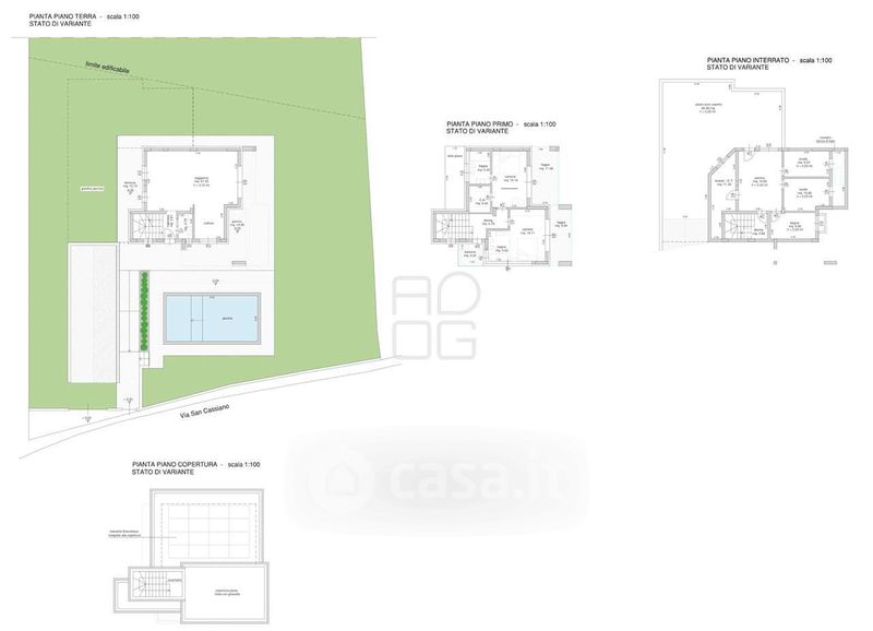
Villa in vendita Via Madonna , Moniga del Garda
Salva
Casa.it
1/19
  • Street View
  • Map