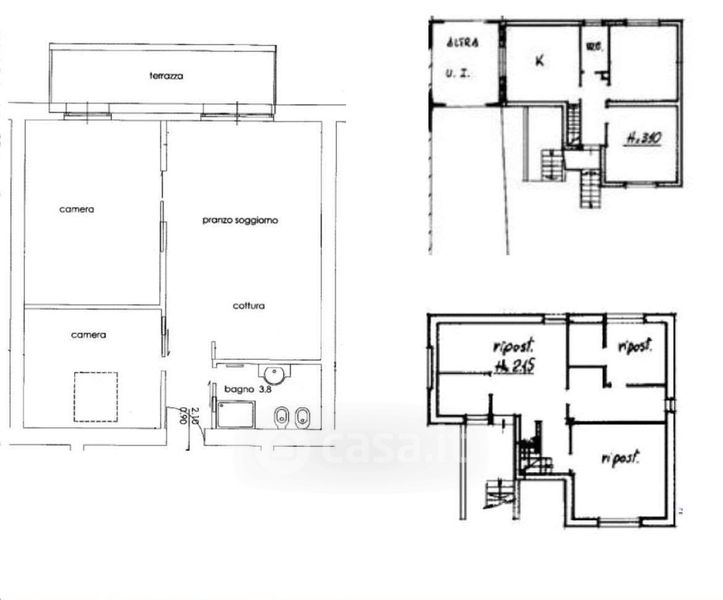
Villa in vendita Via Giuseppe Garibaldi 26, Monte Cremasco
Salva
Casa.it
1/17
  • Street View
  • Map