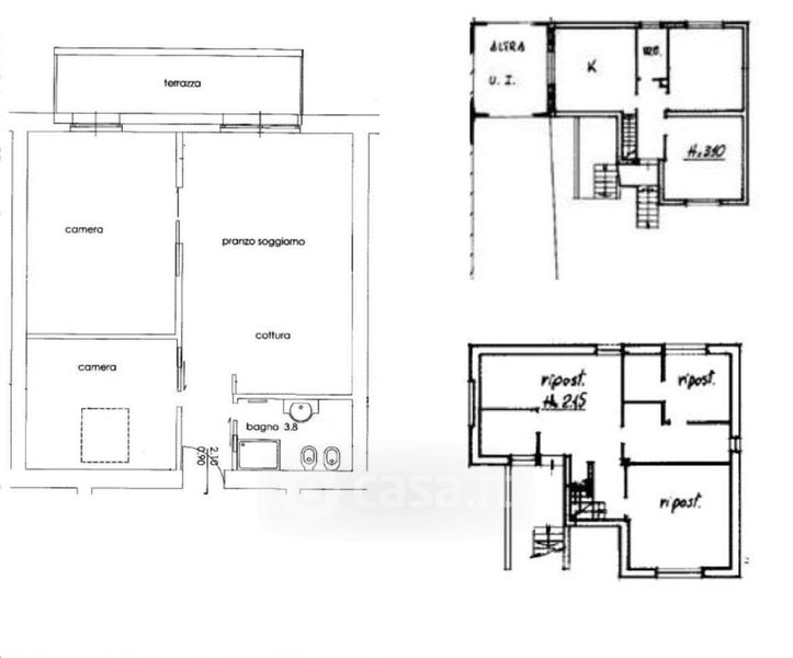
Villa in vendita Via Attilio Lazzari , Paderno Ponchielli
Salva
Casa.it
1/13
  • Street View
  • Map