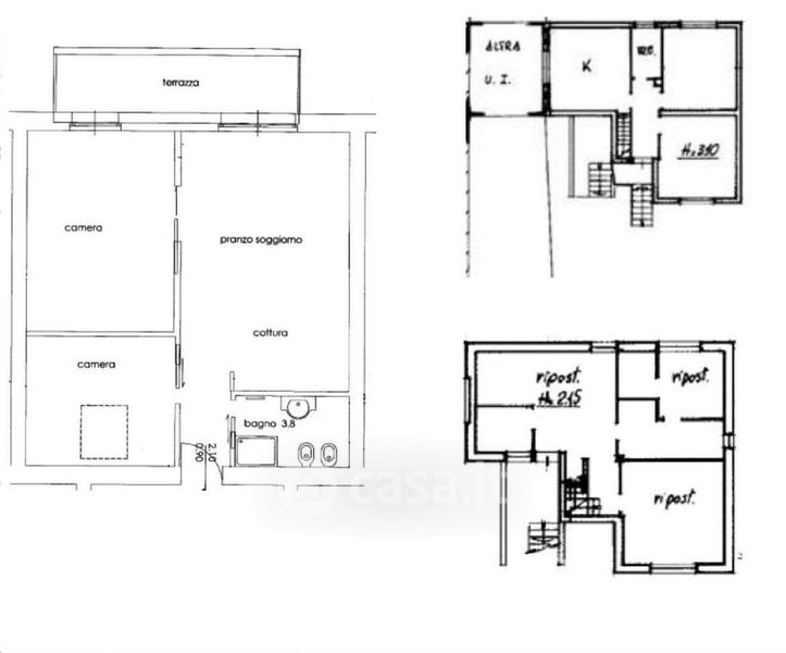
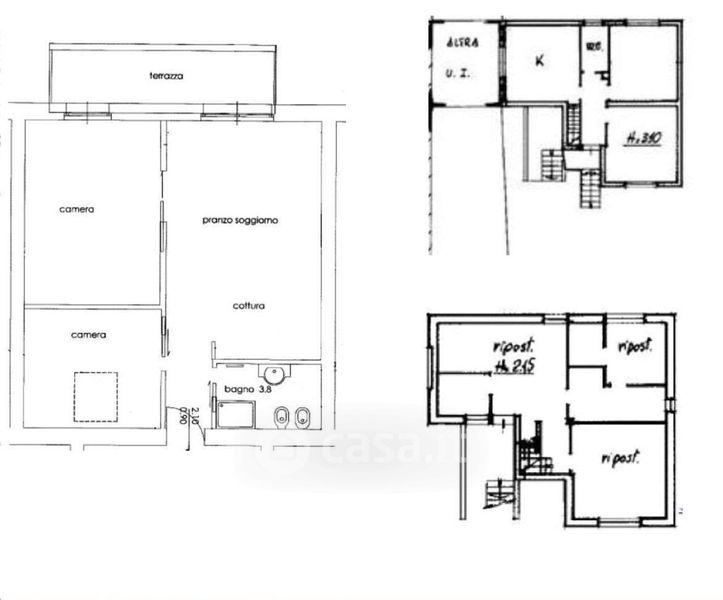
Villa in vendita Viale Papa Giovanni XXIII 144, Palosco
Salva
Casa.it
1/32
  • Street View
  • Map