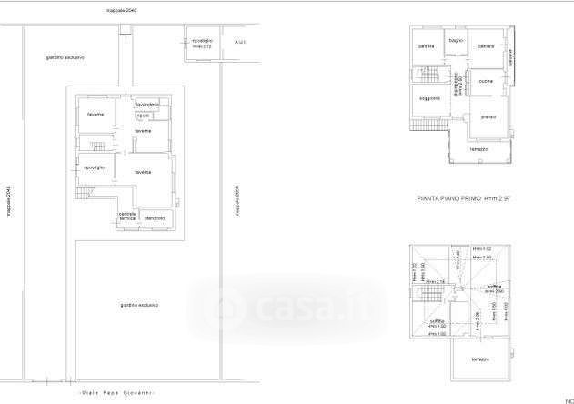
Villa in vendita Viale Papa Giovanni XXIII 148, Palosco
Salva
Casa.it
1/28
  • Street View
  • Map