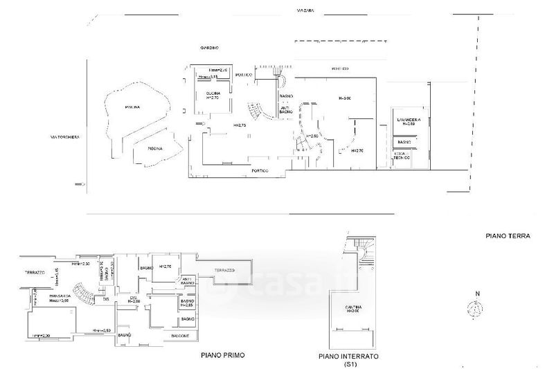
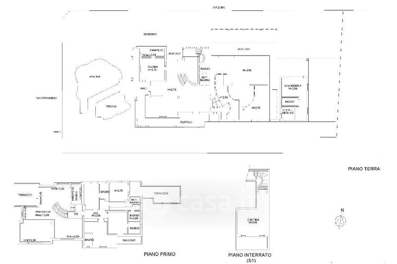
Villa in vendita Via Torchiera 20, Pandino
Salva
Casa.it
1/50
  • Street View
  • Map