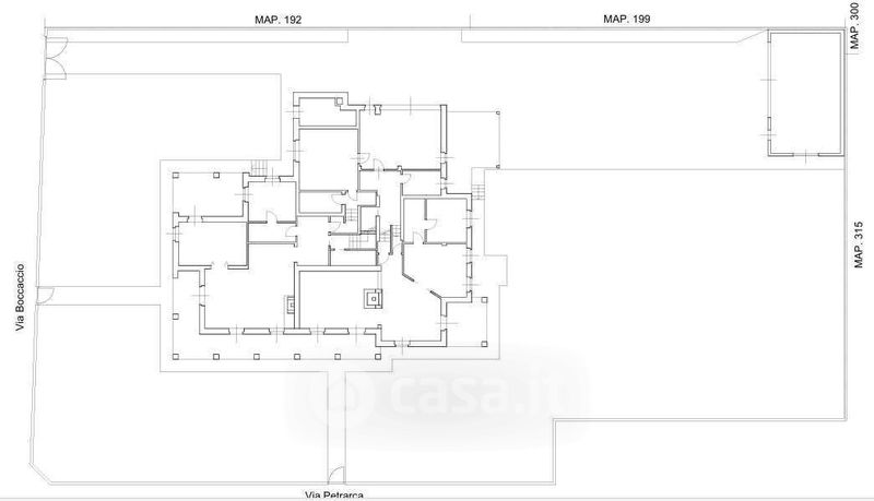
Villa in vendita Via G. Boccaccio 2, Pandino
Salva
Casa.it
1/40
  • Street View
  • Map