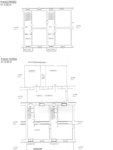
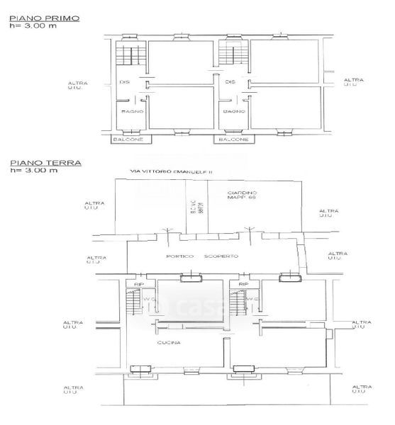
Villa in vendita Via Vittorio Emanuele II 6, Peschiera Borromeo
Salva
Casa.it
1/32
  • Street View
  • Map