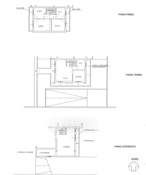
Villa in vendita Via Italia 2, Pozzo d'Adda
Salva
Casa.it
1/23
  • Street View
  • Map