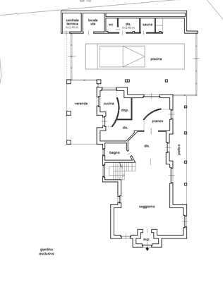
Villa in vendita Via Fara , Pradalunga
Salva
Casa.it
1/40
  • Street View
  • Map