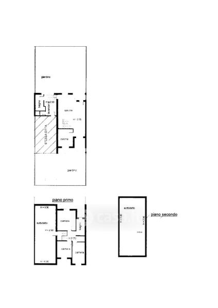
Villa in vendita Via Vincenzo Monti 61, Robecchetto con Induno
Salva
Casa.it
1/25
  • Street View
  • Map