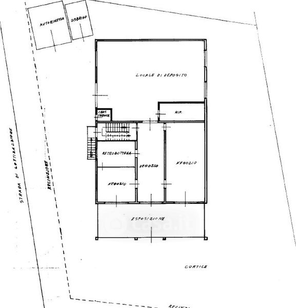
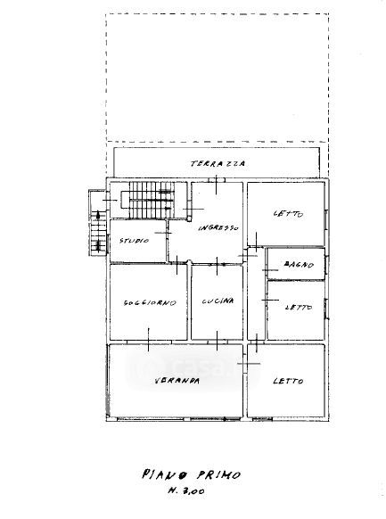
Villa in vendita Strada Francesca Est , Rodigo
Salva
Casa.it
1/38
  • Street View
  • Map