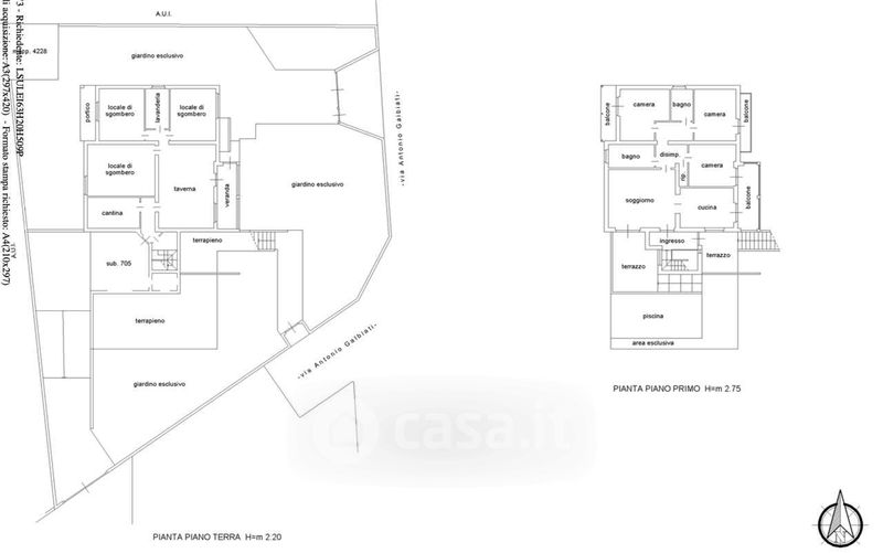
Villa in vendita Via Antonio Galbiati 38, Romano di Lombardia
Salva
Casa.it
1/62
  • Street View
  • Map