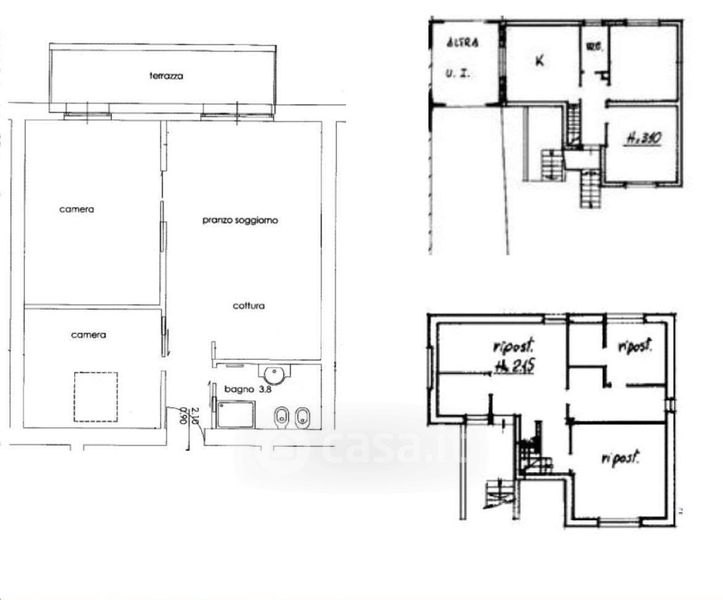
Villa in vendita Via Rini Andrea 5, Salò
Salva
Casa.it
1/29
  • Street View
  • Map