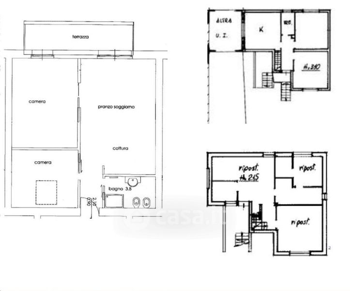
Villa in vendita Via Cattaneo 6, San Bassano
Salva
Casa.it
1/13
  • Street View
  • Map