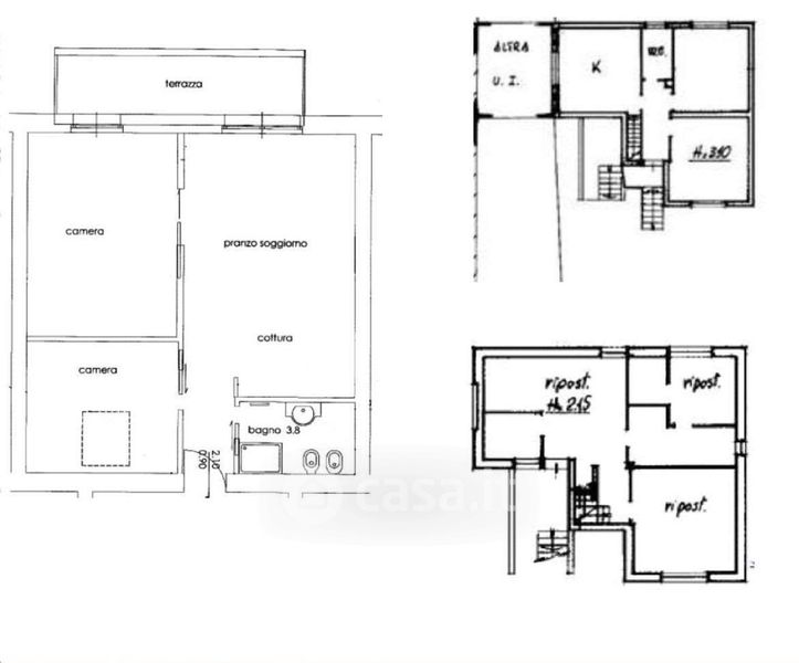
Villa in vendita Via A. Ponchielli 10, San Daniele Po
Salva
Casa.it
1/13
  • Street View
  • Map