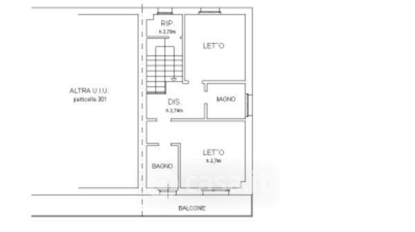
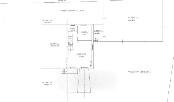
Villa in vendita Via Sordello 5, San Giorgio Bigarello
Salva
Casa.it
1/31
  • Street View
  • Map