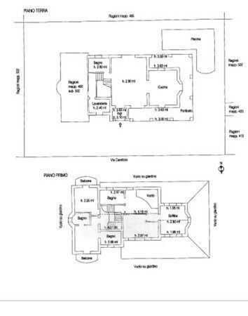
Villa in vendita Via Giuseppina 72, San Giovanni in Croce
Salva
Casa.it
1/27
  • Street View
  • Map