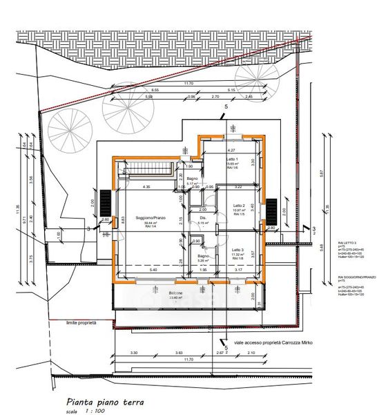
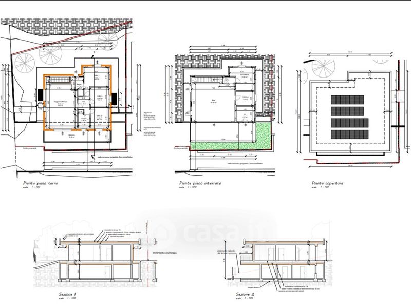
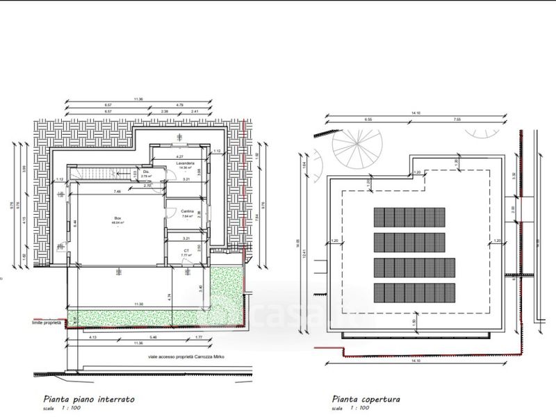
Villa in vendita Via Bonetti , San Paolo d'Argon
Salva
Casa.it
1/32
  • Street View
  • Map