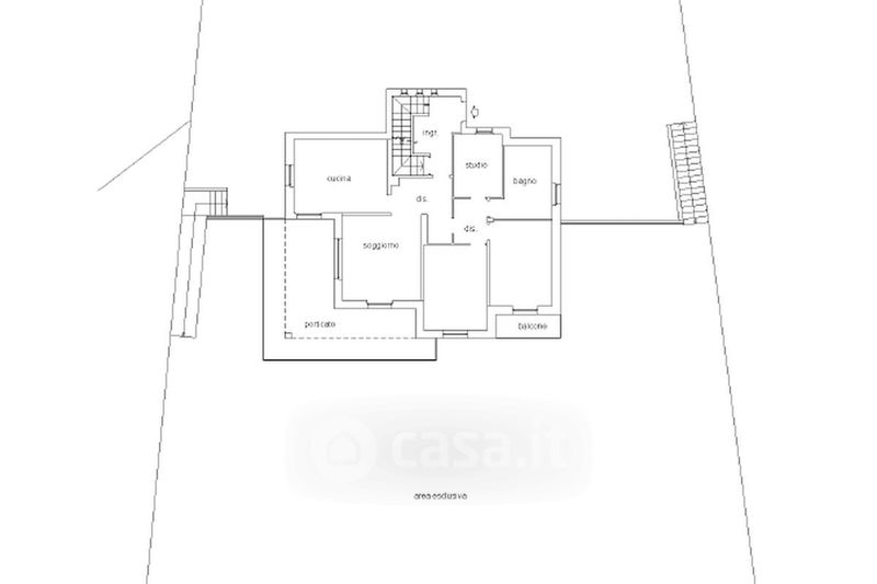
Villa in vendita Via Pendezzo 25, Sant'Omobono Terme
Salva
Casa.it
1/56
  • Street View
  • Map