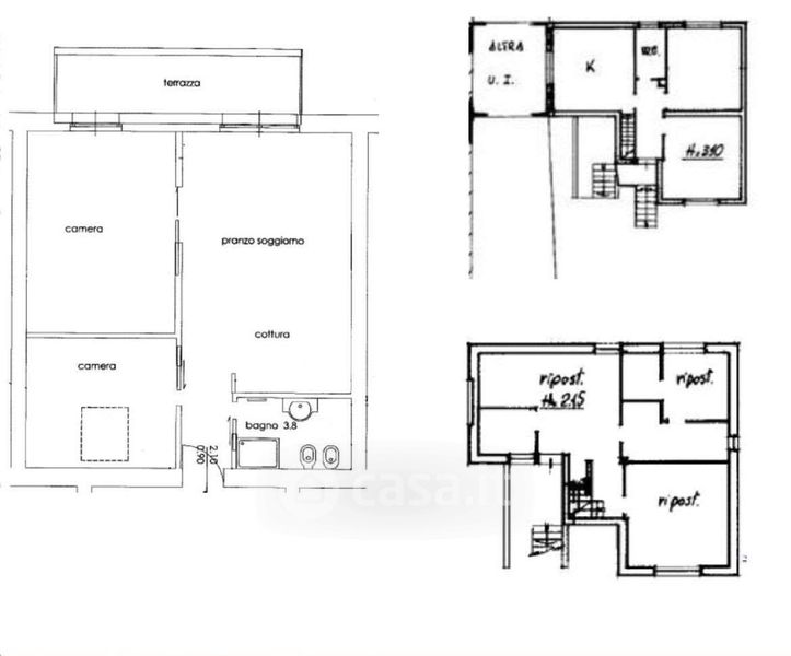
Villa in vendita Via Grazia Deledda 11, Sarezzo
Salva
Casa.it
1/18
  • Street View
  • Map