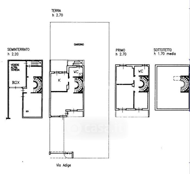
Villa in vendita Via Adige , Segrate
Salva
Casa.it
1/45
  • Street View
  • Map