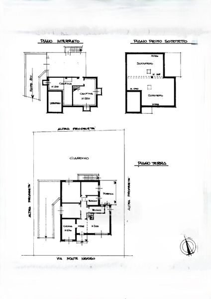
Villa in vendita Via Monte Nevoso 4, Segrate
Salva
Casa.it
1/54
  • Street View
  • Map