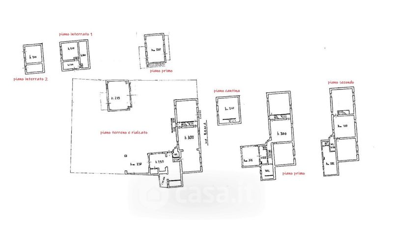
Villa in vendita Via Roma , Sommo
Salva
Casa.it
1/38
  • Street View
  • Map