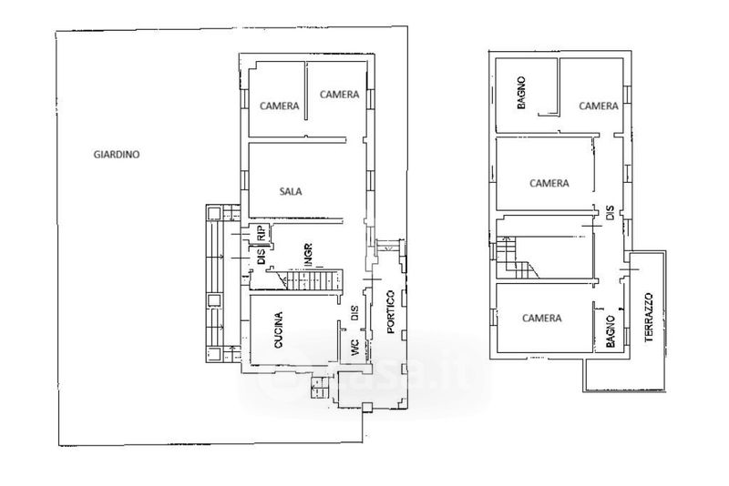
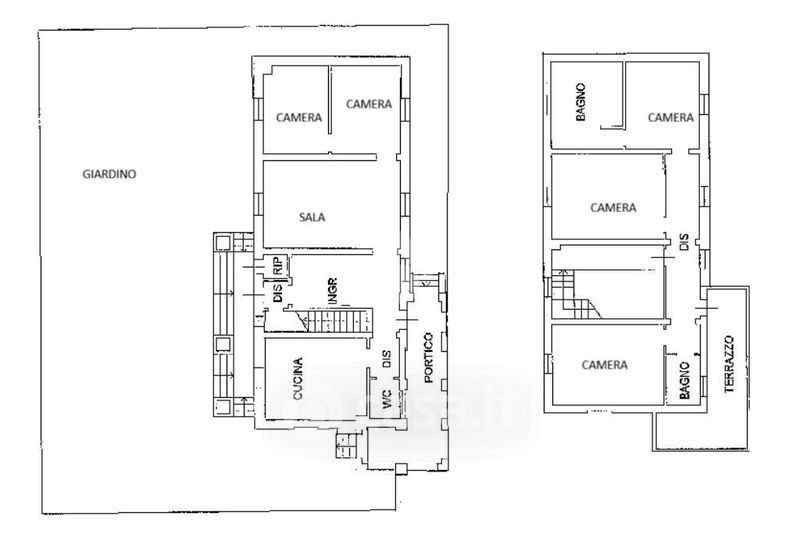
Villa in vendita Via Circonvallazione 26, Spino d'Adda
Salva
Casa.it
1/36
  • Street View
  • Map