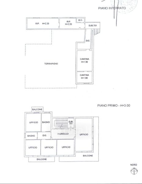
Villa in vendita Via San Rocco , Tavernola Bergamasca
Salva
Casa.it
1/41
  • Street View
  • Map