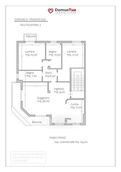
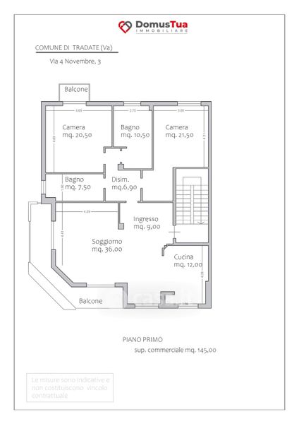
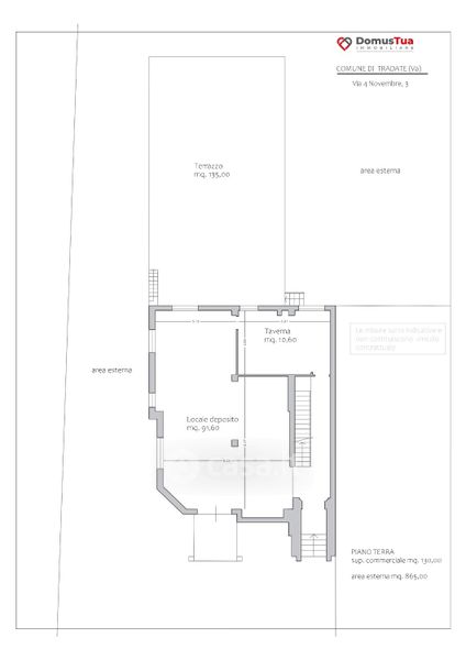
Villa in vendita Via IV Novembre 3, Tradate
Salva
Casa.it
1/56
  • Street View
  • Map